88m² apartment for sale , Orihuela, Spain No. 1595
379 900 €
4 318 €/m²
2
Bathrooms
88
Living space, m²
on map
Apartment in Orihuela
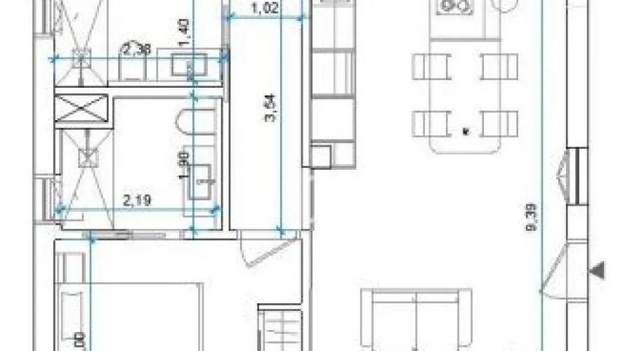
Located in the prestigious setting of Las Colinas Golf Country Club, this elegant 88 m² apartment combines design, comfort, and a privileged lifestyle in one of Spains most exclusive golf resorts.It features 2 bedrooms and 2 bathrooms, along with a fully equipped open-plan kitchen with high-end appliances, seamlessly integrated into the living room to create a modern, functional, and welcoming space. It is sold fully furnished, ready to move in. The residential complex offers a communal swimming pool, beautifully landscaped gardens, and 24-hour security, ensuring privacy and peace of mind. It also includes a private parking space, adding convenience and practicality within the resort.Key features 88 m² built Large south/southwest-facing terrace 2 bedrooms 2 bathrooms Open-plan kitchen with high-end appliances Communal swimming pool Private parking space included Storage roomA perfect property for living, holidaying, or investing in an exclusive Costa Blanca environment.Its location allows you to enjoy the tranquility of the golf course , shops, restaurants, pharmacies, supermarkets, and nearby shopping centers. Alicante International Airport is approximately 50 minutes away by car, providing excellent national and international connections. Contact us today to schedule your viewing.
Project features
- Terrace
